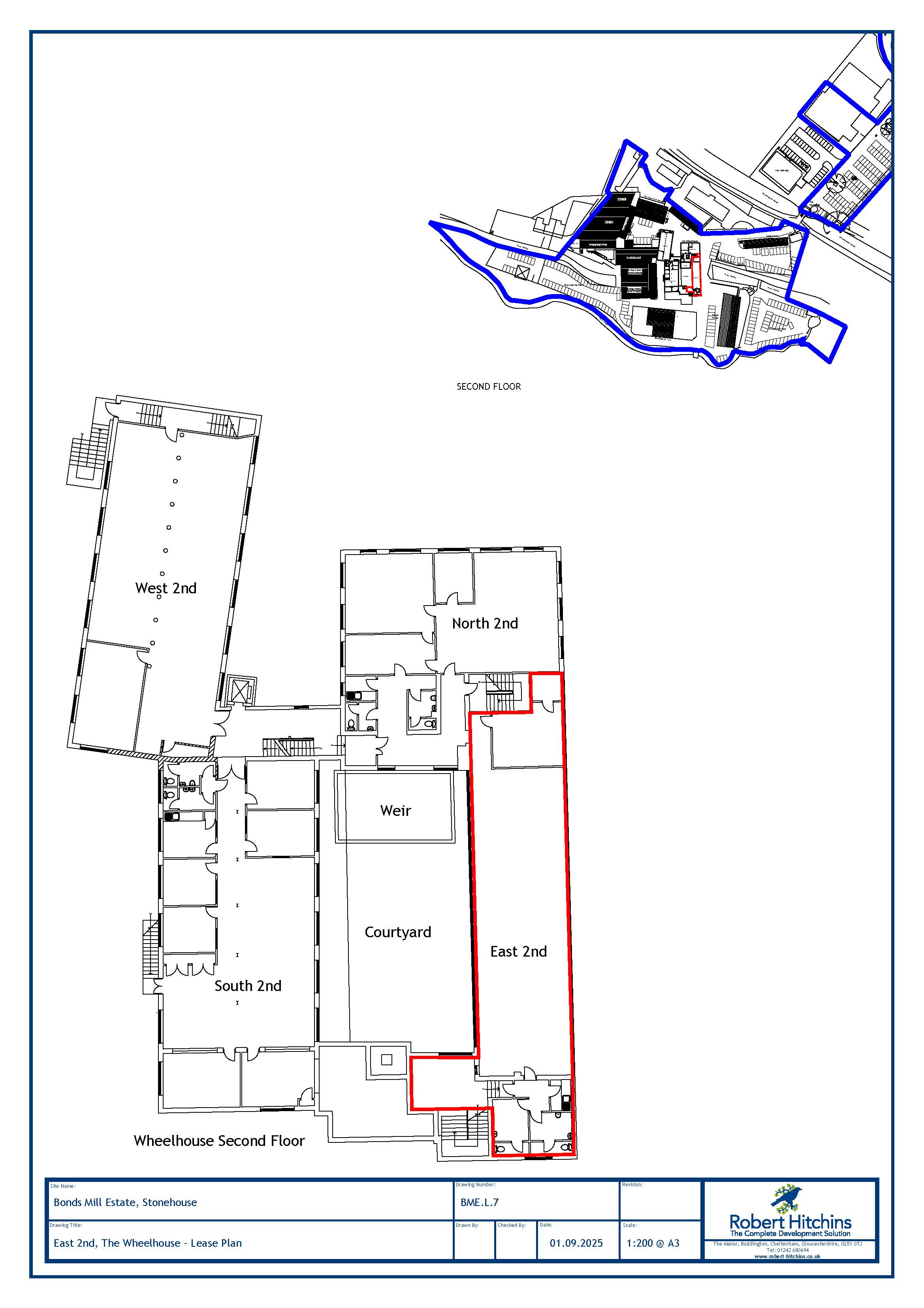
The Wheelhouse

Goldfinch Suite

AVAILABLE FROM JAN 2026

Description

Goldfinch Suite is located on the Second floor of The Wheelhouse of Bond's Mill overlooking the restored 18th century courtyard and the River Frome. The premises share a furnished reception, and there is a passenger lift. There is a courtesy telephone link for visitors to contact each tenant. The suite totals approximately 1,716 sq ft comprising main open plan area, partitioned office adjacent to its front door and to the rear of the premises, a meeting room/break-out area. Goldfinch Suite benefits from uPVC double glazed windows, gas central heating, ample power and telephone points and carpeting. It is self-contained with kitchen and toilets.

Accommodation

Description SQ FT SQ M
Main Office 1,716 159.4
(All areas, where quoted, are approximate)
Download floor plans

Specification

  • Stunning office accommodation in refurbished woollen mill
  • Approximately 1,716 sq ft
  • On-site car parking, bike storage, showers and café
  • Pleasant and peaceful working environment adjoining open fields
  • Only 1.3 miles from Junction 13 of M5
Download particulars

To arrange a viewing contact the sole agents:

Hawkins Watton Ltd
T: 01453 753753
E: admin@hawkinswatton.co.uk

  1. The Wheelhouse
  2. Bank House
  3. The Gatehouse
  4. The Cygnet
  5. Swan House
  6. Frome House
  7. Unit 22/23
  8. Bridge House
  9. Sperry House
  10. River View House
  11. Unit 71/72
  12. Hooper Suite
  13. The Counting House